一、移動式一體化污水處理裝置簡介;
現在國內快速發展,大部分農村城市化,中小型企業也是迅速發展而其中伴隨而來的就是污水處理問題了。現在大家經常看到有新聞報道說,這條河或者那條河被污染的很嚴重,這些的新聞在現在已經不是一件稀奇的事情。這足以可見我們的生活中水處理的必要性,在大型生活社區和廠礦內可選用一體化污水處理設備進行水質改造。
BH-JZ型集裝箱式一體化污水處理設備是博輝環保科技生產的一種污水處理設備,它采用中空纖維膜生物反應器(MBR)技術,將膜分離技術、生物處理技術、智能化控制技術有機結合,整套設備經優化集成后布置在集裝箱體內,具有安裝快捷、移動方便、處理效果好、占地面積小、運行維護簡單等特點。出水可達到《城市雜用水水質》GB/T18920-2002及《景觀環境用水水質》GB/T18921-2002,即可達到國家高的《城鎮污水處理廠排放標準》GB/T 18920-2002一級B(或一級A)標準,可直接排放或回用。
二、適用場合;
● 旅游風景區、別墅區、住宅區、部隊營區、油田鉆井隊、礦區、燃氣站、變電站、車站、收費站、高速服務區、村莊、小集鎮等的生活污水處理或回用;
● 臨時工地的污水處理或回用;
● 醫院、療養院、養老院的污廢水處理。
● 工業企業的生產廢水處理或回用。
三、設備特色;
● 安裝投用快捷,即接即用,出水迅速達到標準要求,大大縮短施工周期;
● 移動搬運方便,用戶可根據需要更換不同安放地點,也可多處共用一套處理設備,巡回使用,節省設備投資;
● 處理效果穩定可靠,BOD去除率98%出水清澈,可直接回用于沖廁、綠化、景觀等,也可高標準排放,節水減排;
● 占地面積比普通工藝設備小50%以上,節約用地。
● 設備全自動運行,無需專人值守,無需加藥,污泥產量少,維護簡便,節省運行費用。
四、安裝方式;
● 室外(或室內)地面以上;
● 如需地埋需在訂貨前說明。
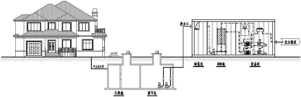
五、設備工藝流程;

六、BH-JZ系列一體化污水處理設備的工藝流程介紹;
1)調節池(客戶自建);
收集儲存污水,對水量和水質進行調節。
2)提升泵;
調節池內設置提升泵,將污水自動提升到BH-JZ型一體化污水處理設備中。
3)格柵;
污水中經常含有大量雜物,為了保證系統的正常運行,必須將各種纖維、渣物、廢紙等雜物攔截在系統之外,因此在系統前設置格柵,定期將柵渣清理干凈。
4)缺氧池;
其作用是讓大分子的物質分解成小分子的易分解的物質,提高廢水的B/C比。另外還能通過反硝化來達到脫氮效果。此段根據原水水質和排放標準來定。
5)MBR反應池;
采用獨特結構的浸入平板式或中空纖維膜生物反應器(MBR)組件,它設置于曝氣池內,經過好氧曝氣和生物處理后的水經過濾膜(孔徑0.1um)過濾由泵抽出后可直接排放或回用。由于它的出水不受污泥沉降條件的影響,可使池內保持高容積負荷、長泥齡的條件下運行,這樣大大提高生物氧化的工藝條件,提高了有機物降解效率,同時省去了二沉池,達到出水優良,穩定的效果。
6)消毒;
根據出水的要求,系統設計有消毒裝置,一般采用清潔簡便的紫外線殺菌方式,亦可選用消毒劑投加方式。
7)配套機電設備間:
抽吸泵、風機、電控柜等安裝于設備機房內。整個系統在PLC控制下,自動運行,并對設備進行保護。各動力設備均設備用,故障自動切換,保持設備正常運行。
七、BH-JZ一體化污水處理設備主要規格參數表;
八、遠程監控及控制運行系統;
1)、全自動控制,無需專人值守(一位操作員可以管理15 套以上);
2)、提供趨勢預測及應對突發事件報警;
3)、上傳各種數字信息并通過計算通訊平臺進行收集、整合、分析和處理,構建經優化的生產過程管理方案,實現點源的實時數據監控、對進、產、排三個主要環節進行遠程監控;
4)、實現對生產過程的實時控制與精細化管理,達到規范管理、節能降耗、減員增效的目的;
5)、通過連接互聯網的計算機可輕松直觀的監控點源的運行狀況;